社區攻略 | 新北市三重區富麗天景看屋心得(價格+格局分析)
新北市三重區二重重劃區右岸鄰近集美商圈,擁三重捷運站、新北大都會公園,預售案「富麗天景」基地即位在重劃區內的水漾路一段,全案規劃2~3房的首購及首換型產品,最小坪數25坪起,訴求鄰近三重站、水岸公園第一排。
富麗天景外觀圖
優點
- 社區規劃:「富麗天景」基地位在水漾路一段、緊鄰新北大都會公園,高樓層擁水岸景觀。
- 交通:車行1分鐘即可達機捷與中和新蘆線交會的三重站,周邊亦有重新橋、中興橋可利用。
缺點
- 社區規劃:單層戶數較多,且除了住家之外,亦有規劃些許店面及辦公室產品,須留意出入人口複雜度。
- 房型規劃:全案不少戶別為單面採光設計,在意的朋友可多留意。
區域解析
地理位置
交通機能
車行1分鐘即可至捷運三重站,附近亦有重新橋、中興橋可利用。
生活機能
- 學校:車行3分鐘可至集美國小,車行6分鐘亦可至三重高中(附屬國中部)。
- 商業:車行2分鐘可達全聯(三重捷運店)。
- 休閒:步行2分鐘可至新北大都會公園,步行8分鐘亦可達三重國民運動中心。
- 醫療:宏仁醫院。
社區規劃
「富麗天景」基地位於水漾路一段,面積755.29坪,規劃1棟地上20層、地下6層之建築,全案共158戶住家、5戶店面、4戶辦公室,屬於中型社區;車位為平面式174個,車位配比1:1.04,社區公共設施有接待大廳、空中花園、交誼廳、健身房、親子遊戲區、兒童遊戲區、廚藝教室、信箱區、曬被區等,公設比34.9%。
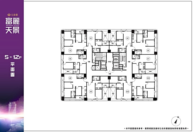
從5~12樓的平面圖來看,全案為單層10戶3梯的配置,梯戶比約1:3.33;格局部分,A1、A5、A8、A11為雙面採光設計,其中A1與A5、A8與A11彼此格局類似,至於A2、A3、A6、A7、A9、A10則為單面採光設計,其中A2、A3與A9、A10格局相似;A6與A7彼此格局亦相似。
註:100戶以內為小社區,100~300戶中型社區、300戶以上大型社區
註: 1:4以上屬高梯戶比,1:3屬一般梯戶比,1:2、1:1屬低梯戶比,多是豪宅、小基地建案
格局解析
周邊比價
購買建議
「富麗天景」基地位在水岸第一排,鄰近新北大都會公園及捷運三重站,惟單層戶數較多,且全案不少戶別為單面採光設計,在意的朋友可多留意;以平面圖來看,推薦A1、A8戶3房給換屋的朋友,兩戶的格局還算方正,都是雙面採光、明廳設計,臥室亦規劃開窗且無柱,加上皆臨水漾路,高樓層都有機會看到水岸景觀,故推薦。
免責聲明:凡註明"591編輯部"的所有文字圖片等資料,版權均屬591房屋交易網所有,轉載請註明出處;文章內容僅供參考,不構成投資建議,也不代表591讚同其觀點。文中所涉坪數,如無特殊說明,均為規劃坪數。文中出現的圖片僅供參考,以銷售中心實際情況為準。
感謝您的反饋,我們將會盡快改善




