社區攻略 | 新北市汐止區鉌田心境看屋心得(價格+格局分析)
「鉌田心境」位於新北市汐止區大同路二段184巷1-1號旁,旁邊就是台鐵汐科站北站,同時鄰近大同路麥當勞商圈,步行可至汐止國小、汐止國中,同時有運動中心、防災公園,生活機能不錯。一大特色是交通便利,台鐵汐科站北站一站就達四鐵共構的南港站,往返台北市便利。全案66戶,規劃1房至3+1房,最小坪數18坪起,格局相當多元。

鉌田心境外觀圖

-
機能:步行10分鐘距離內有汐止國小、汐止國中、秀峰市場、觀光夜市、全聯、運動中心等,基本生活所需機能具備。
-
位置:步行2分鐘內可台鐵汐科站北站,同時近國道1號、國道3號,交通出行便利。
-
格局:「鉌田心境」為周邊唯一新案,同時住宅樓高3米35,具稀有性。

-
社區規劃:公設比36%稍高,車位配比也未達一戶一車位。
-
格局規劃:多數戶型衛浴皆未開窗,較不符合家庭居住需求。
區域解析

地理位置
交通機能
步行2分鐘至台鐵汐科站北科站,同時近國道3號、國道1號,進出大台北、基隆皆便利。
生活機能
-
學校:步行10分鐘內可抵達汐止國中、汐止國小。
-
商業:步行10分鐘內可至大同路麥當勞商圈、秀峰市場、汐止觀光夜市、全聯,車行4分鐘可達遠雄購物廣場。
-
休閒:步行11分鐘內至防災公園、運動中心。
-
醫院:就醫部分車行7分鐘至國泰醫院。
社區規劃

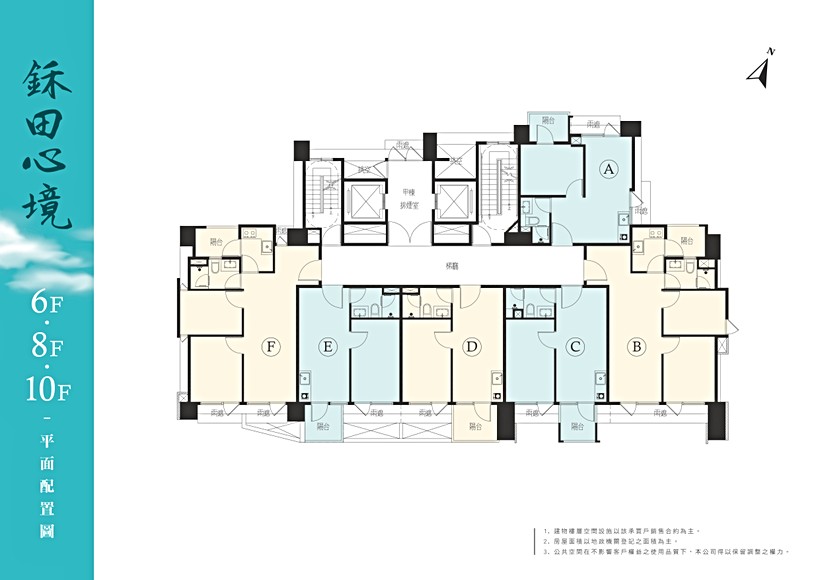
「鉌田心境」基地面積285.25坪,共有三棟建築,規劃地上14樓高及地下1層,共66戶住家、2戶店面,平面式車位2個、機械車位47個,停車位配比為1:0.72,公設比36%,公設比及停車位配比表現皆不佳,規劃18坪~41坪,格局上從1房、1+1房、2房、2+1、3房、3+1房皆有,房型相當多元,單層6戶2梯,梯戶比為1:3。
註:100戶以內為小社區,100~300戶中型社區、300戶以上大型社區
註: 1:4以上屬高梯戶比,1:3屬一般梯戶比,1:2、1:1屬低梯戶比,多是豪宅、小基地建案
格局解析
周邊比價
購買建議
「鉌田心境」位於台鐵汐科站北站旁,近大同路麥當勞商圈,公園、店家、學校皆步行可達,一大特色是交通機能佳,除有國道1號、國道3號、及台鐵站外,開發中的捷運東湖線、基隆捷運雙捷運站也在本案旁,具有未來發展潛力話題性,屆時往返基隆、台北將更為便利,且本案為周邊唯一新建案,可吸引跨區域民眾居住。
社區最大抗性是公設比、停車位配比表現皆不佳,格局規劃上相當多元,從10多坪的1房到40多坪的正三房皆有,往好處看是選擇多,另個角度則是社區組成複雜,對於家庭客具抗性。其中A戶型雖為1房格局,但在採光、坪效上表現都不錯,客廳有直接採光,唯一房產品中較優的選擇,適合單身貴族。另B戶27坪2+1房規劃,雖然客廳位於格局中間,無直接採光,不過實務上可過裝潢改善,加計坪效表現好,適合有小孩的小家庭居住。