淡水市區綠建築首購宅-「悠森學」
「淡海新利多 美麗華影城Q4開幕」看著新聞頻道的跑馬燈,我跟夫人真是欣喜若狂啦~常威在台北工作一段時間了,常感受大台北地區的房價讓人無法下手。雖然淡水地區房價較低,但總覺得機能性不足,不過美麗華商場、輕軌等建設將陸續到位後,又重新燃起常威的信心!近期鄰近新市鎮的新春街上又有新建案公開,不但享有舊商圈機能,離未來發展中心亦不遠,趕緊揪夫人來看房啦~~

「悠森學」是由陞逸建設投資興建,建案位在淡水區新春街120號旁,規劃有2~4房26~53坪,247戶純住宅社區大樓,主打銀級綠建築候選標章,低建蔽率及豐富的公共設施,但至台北市區幹道車潮眾多,上下班時段易有塞車問題須留意。


1.銀級綠建築候選標章、低建蔽率。
2.全齡成長社區設計,公設完整。
3.純住宅社區規劃,出入單純。
4.開價與周邊建案相比較為親民,符合首購需求。
5.鄰近舊商圈與新市鎮,生活機能完整。

1.至台北市區車潮眾多,上下班時間易壅塞。
2.基地較不方正,且僅單面臨路。
3.車道採單一車道口雙向進出,須留意上下班車潮等候問題。
淡水地區可說是近年雙北首購族群注目的指標區域,畢竟1~2字頭房價在大台北地區已經是相當少有,加上今年底淡海輕軌、美麗華影城等都將陸續完工營運,前景可說相當看好,常威我跟夫人也是非常期待,所以趕緊來關心一下此區域的周邊環境啦!

首先當然要關心生活商圈啦!畢竟有好的生活機能,夫人才不用每天煩惱要煮些什麼,「悠森學」位在新春街,街上即有全聯福利中心與美聯社可採買生活用品,走路3分鐘就可以抵達,若要大型賣場則要車程3分鐘至淡海新市鎮的家樂福選購。而周遭商圈也相當成熟,距離水碓商圈約步行10分鐘,淡水老街則約車程5分鐘,餐飲店的選擇非常多元。
- 美廉社
- 全聯福利中心
- 家樂福
- 水碓商圈
在學區的部分,建案步行3分鐘就可以到達新興國小,距離正德國中也僅10分鐘的路程,未來較不用擔心威小寶、威小妹的接送問題,同時周遭也有多個知名私立大學如:淡江大學、真理大學等,不論是小孩未來讀書或是置產投資套房,常威跟夫人認為都是不錯的選擇啦!
- 新興國小
- 正德國中
- 淡江大學
- 真理大學
在休閒娛樂的部分,距離大都會廣場約10分鐘車程,可選購一些精品服飾或生活用品,至於近期將開幕的美麗華影城則約7分鐘車程,淡水終於也有電影可以看啦!!(興奮),除此之外,淡水地區的老街商圈(車程4分鐘)、漁人碼頭(車程10分鐘)也是假日可以散步走走的好去處。
- 大都會廣場
- 美麗華影城
- 淡水老街商圈
- 漁人碼頭
在大眾運輸系統的部分,社區步行1-2分鐘即有公車站,有多條公車線可往來淡水及台北市區,距離淡水捷運站則約10分鐘車程,離年底通車的輕軌-新市一路站則約車程4分鐘,像常威在台北市區工作,要搭乘大眾運輸系統去上班的話還算便利。
- 公車站牌
- 公車站牌
- 淡水捷運站
- 輕軌-新市一路站
而道路交通方面,則是淡水地區較為缺乏的部分,目前不論是淡北快速道路或是芝投公路都尚未明朗化,淡水地區又乘載了許多上班族群,使得上、下班時間淡金公路常常會有塞車狀況,所以上班族還是需要先有些心理準備囉!

來說說$$問題,「悠森學」每坪開價約在22-24萬之間,其他鄰近新案如同條街上益翔建設的「益翔樂生活」每坪開價大約為23-26萬,還有中山北路二段和光建設的「和光九泰」每坪開價約為29~32萬。
- 益翔樂生活
- 和光九泰
中古屋行情部分,位在新春街上屋齡5年的「丰悅夏宮」每坪開價約25.2萬,屋齡24年的「淡水新都」每坪開價約在19.7萬,另外還有屋齡10年「棕櫚海」每坪開價則約在21.9萬,屋齡22年的「宏英加州」每坪開價19.1萬。
- 丰悅夏宮
- 淡水新都
- 棕櫚海
- 宏英加州
以周邊行情來說,「悠森學」與鄰近新建案及中古屋相比開價較低,加上建案主打銀級綠建築候選標章,又有多樣豐富公設,對於此區域來說,常威認為是非常符合首購需求的選擇呀!

接著趕緊來到接待中心囉!接待中心就位在基地上,一走進室內就可以看到建築模型,從建築模型發現社區前規劃有中庭花園廊道,由於是採銀級綠建築候選標章設計,社區內將種植340多棵樹,並且有約150公尺的花園步道圍繞,非常適合我跟夫人飯後在社區的花園散步走走談心。
- 建案模型圖
- 建案特色說明牆
- 中庭花園廊道
- 花園步道圍繞社區
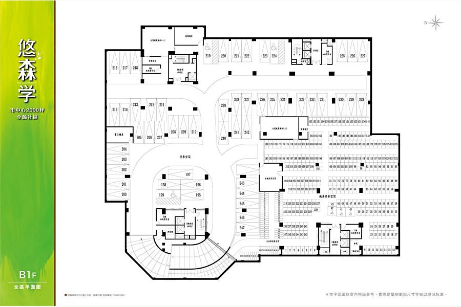
再來銷售人員就跟我們介紹「悠森學」的基本資料囉,建案是由陞逸建設投資興建,基地面積有2098坪之大,但建蔽率僅23.66%;採RC鋼筋混凝土結構,樓層規劃4棟地上15層,地下3層;標準層樓高3米2,規劃有2~4房26~53坪格局。
停車位的部分則規劃有地下3層共計247個平面式汽車停車位,從模型示意圖可以發現,進入社區的廊道即採人車分道規劃,可以讓社區民眾悠閒的散步也保有安全性,車道則是採單一車道雙向進出口設計,因本社區戶數較多,上下班需留意等候的問題。

- 進入社區採人車分道
- 單一車道口雙向進出
在標準層平面圖的部分,「悠森學」規劃有247戶純住家社區,共區分為A~D棟,A棟為雙併單梯,B~D棟皆為5戶雙梯,規劃格局為2~4房26~53坪,由於格局眾多選擇不少,常威就先帶大家來瞧瞧樣品屋的格局囉。

樣品屋的格局為D2戶38坪3房2廳2衛(與C2戶相似),該戶格局方正,雙面採光,設計風格為簡約北歐風,融入了一些木紋及植物的元素,不但可以跟社區相呼應,對於每天在大都市裡忙碌的我們來說,回到家會有種放鬆的感覺,是我跟夫人一直都很喜愛的風格之一。

在公共空間部分,進門處即為客餐廳,由於可直接看到陽台 ,若擔心有穿堂煞問題的朋友建議可以使用屏風來遮擋,廚房採用的是櫻花牌廚具,一字型的設計節省空間,同時還夠擺放雙門冰箱,對我夫人這種愛展露廚藝的女性,基本配備不用擔心。
- 客廳
- 餐廳
- 廚房採一字型設計節省空間
- 櫻花牌廚具
衛浴部分,客衛浴位在廚房旁採三件式衛浴,較為可惜的是沒有開窗,須留意通風問題,但配備有HUSKY暖風機可稍微改善此一缺點,主衛浴則有浴缸,並且開窗保持通風,表現較佳。
- 主衛浴
- 客衛浴
個人空間部分,主臥相當寬敞,還規劃了一個更衣空間,剛好可以滿足我夫人對於主臥的幻想(男人真命苦~),次臥的部分雖然皆可擺放雙人床,但我跟夫人都覺得改成臥舖設計,對於以後小孩的空間或許會更夠用,或者像樣品屋一樣,可以做成開放式的感覺,變成個人工作室也是不錯的選擇囉!
- 主臥
- 更衣空間
- 次臥
- 次臥
由於樣品屋僅有一間,接著就來看看B3戶2房的傢配圖囉,該戶為2房1廳1衛26坪,室內為單面採光,衛浴空間沒有開窗較為可惜,兩間臥室空間則相當充足,擺放雙人床還有足夠的活動區域,且都有開窗無暗房,其中主臥還有更衣空間,就不用擔心夫人的衣服丟的到處都是啦~~

看完樣品屋規劃後,常威跟夫人覺得「悠森學」蠻適合自住型的族群,主打銀級綠建築候選標章,全齡的公設規劃,充足的社區中庭花園空間,開價僅2字頭,非常適合首購族群列為觀察名單!由於本案格局眾多,希望本次的介紹能滿足大家的喜好,建議大家可以到現場瞭解其他格局的配置囉,常威跟夫人要接著繼續賞屋去啦!下次見。