社區攻略 | 台北市北投區天母鑲玉看屋心得(價格+格局分析)
台北市北投區石牌榮總生活圈擁有高綠覆率、溫泉自然資源,加上多元的醫療院所,向來受到退休置產族以及自住買盤青睞,不過區域發展早期,素地相當稀少,新推案多來自都更危老,而本次介紹的預售新案「天母鑲玉」基地位於台北市北投區石牌路二段315巷,規劃2~3房自住主流型產品,最小坪數25坪起,戶戶邊間、雙面以上採光。

天母鑲玉外觀圖

- 環境:「天母鑲玉」基地周邊多為住宅產品,純住宅氛圍濃厚,居住環境舒適。
- 社區規劃:純住宅社區,零店面設計,住宅標準平面層單層三併,出入相當單純。

- 交通:「天母鑲玉」基地周邊缺乏軌道系統,需仰賴自行交通工具或公車。
- 社區規劃:小型社區,且多規劃機械車位,未來管理維護成本恐怕較高。
區域解析

地理位置
交通機能
至捷運石牌站約車行8分鐘。
生活機能
- 學校:車行5分鐘可到天母國小、7分鐘到石牌國中。
- 商業:步行8分鐘可抵全聯,車行6分鐘到石牌商圈、家樂福超市。
- 休閒:距離櫻花崗公園約步行7分鐘。
社區規劃

「天母鑲玉」位於台北市北投區石牌路二段315巷31號,由鴻祥開發建設股份有限公司、首敦建設股份有限公司投資建設,基地面積219.81坪,樓層規劃為1棟地上13層、地下3層建築,共有31戶住家。車位規劃3個平面式、29個機械式,車位配比1:1.03,足以一戶一車位。
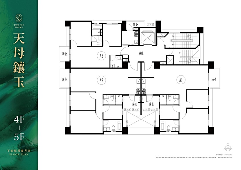
公設比34.54%,設施有接待大廳、空中花園、會議室、閱覽室、信箱區、曬被區。住宅標準平面層方面,單層三併一梯,梯戶比1:3,不過總戶數不多,尖峰時間等待電梯時間不會太久。格局坪數規劃2房(25~28)坪、3房(39)坪,戶戶邊間、雙面以上採光,其中A1/A2戶為對稱三房,雙衛浴開窗,主臥衛浴配置浴缸。
註:100戶以內為小社區,100~300戶中型社區、300戶以上大型社區
註: 1:4以上屬高梯戶比,1:3屬一般梯戶比,1:2、1:1屬低梯戶比,多是豪宅、小基地建案
格局解析
周邊比價
購買建議
「天母鑲玉」位於台北市北投石牌榮總生活圈,周邊醫療、綠地資源豐沛,加上不到10分鐘可銜接石牌商圈,兼具慢活及機能,全案規劃2~3房、純住宅社區,出入相對單純,推薦A2戶給退休置產族,客廳朝向山景綠意,居住氛圍相當舒適,且三面採光,室內明亮通風。
免責聲明:凡註明"591編輯部"的所有文字圖片等資料,版權均屬591房屋交易網所有,轉載請註明出處;文章內容僅供參考,不構成投資建議,也不代表591讚同其觀點。文中所涉坪數,如無特殊說明,均為規劃坪數。文中出現的圖片僅供參考,以銷售中心實際情況為準。
感謝您的反饋,我們將會盡快改善