社區攻略 | 台中市后里區輕崧美光看屋心得(價格+格局分析)
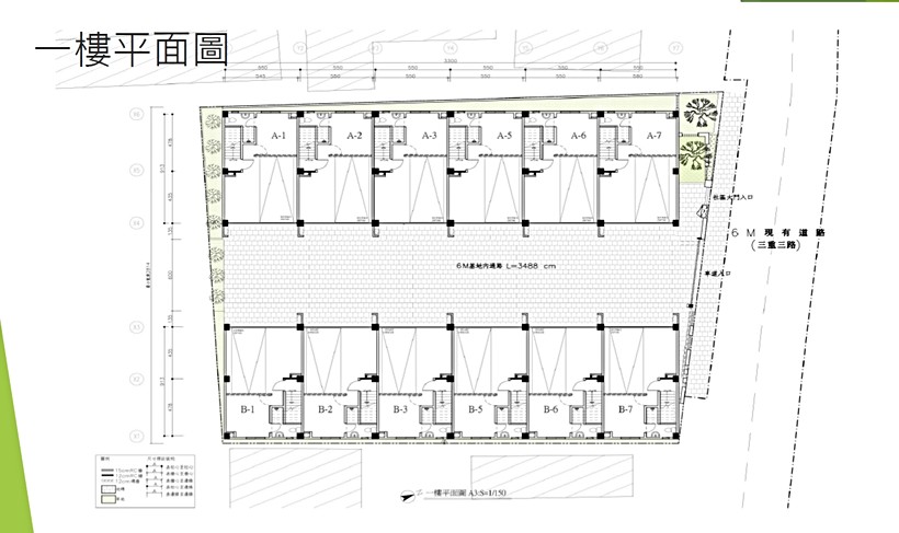
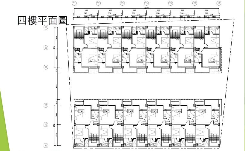
台中市后里地區過去為房市邊陲地帶,但隨著中科擴廠效應,中科后里園區吸引光電大廠友達、記憶體大廠美光及鴻海集團搶進後,人口紅利、就業機會提升,成為房市眾所矚目的焦點,就連龍頭建商也將獵地觸角伸至后里。而本次介紹的預售透天建案「輕崧美光」,基地位於台中市后里區三重三路,規劃12戶地上4層透天住家,最小地坪24坪、建坪63坪起,訴求每一間臥室皆為套房設計,隱私性高、適合三代同堂居住。

輕崧美光外觀圖

- 環境:「輕崧美光」周邊多農田綠地,環境清幽宜人。
- 社區規劃:1樓停車,最多可停3部車,若有長輩可改規劃成孝親房。
- 格局規劃:每間臥室皆為套房規劃。

- 機能:基地四周商業活動不甚活絡,需依靠交通工具聯絡其他商圈。
- 社區規劃:全案皆為社區型透天,採土地持分,社區內車道約6米,會車須留意。
區域解析

地理位置
交通機能
車行約5分鐘至國道一號,南來北往四通八達。
生活機能
- 學校:距離月眉國小約2.2公里,至后里國中約車行2分鐘。
- 商業:至月眉市區約車行5分鐘,月眉糖廠、麗寶樂園OUTLET,到民生黃昏市場、全聯則約8分鐘車行時間。
- 休閒:至花博公園約車行9分鐘,到后里馬場11分鐘,提供休憩運動去處。
社區規劃




「輕崧美光」占地312.31坪,由永達開發物業管理投資開發、大森營造興建,規劃地上4層透天住家,總戶數為12戶,面寬可達5.5米、縱深9.2米,採1樓停車,最多可停3部車,社區內車道規劃6米,坪數格局規劃地坪24~29坪、 建坪63~67坪,可規劃4間套房,都是雙人房尺度。
註:100戶以內為小社區,100~300戶中型社區、300戶以上大型社區
註: 1:4以上屬高梯戶比,1:3屬一般梯戶比,1:2、1:1屬低梯戶比,多是豪宅、小基地建案
格局解析
周邊比價
購買建議
「輕崧美光」位於台中市后里地區,鄰近月眉市區,擁月眉糖廠、麗寶樂園等商業設施,亦有完整的學區月眉國小、后里國中,推薦三代同堂大家庭可購置A區A7戶,空間尺度寬敞,可同享天倫之樂,亦可保有隱私,且位於社區大門旁,出入便利。
免責聲明:凡註明"591編輯部"的所有文字圖片等資料,版權均屬591房屋交易網所有,轉載請註明出處;文章內容僅供參考,不構成投資建議,也不代表591讚同其觀點。文中所涉坪數,如無特殊說明,均為規劃坪數。文中出現的圖片僅供參考,以銷售中心實際情況為準。
感謝您的反饋,我們將會盡快改善