社區攻略 | 台南市麻豆區逸墅家8-透天看屋心得(價格+格局分析)
「逸墅家8」位於台南市麻豆區新生南路旁,鄰近麻豆商圈,商圈內小吃、採買店家林立,為一生活機能完善的區域。同時,本案在車行合理範圍內,可達公園、醫院、國中小、傳統市場、超市等店家。交通上近國道1號及84快速道路,大眾運輸有客運麻豆轉運站,可藉此往返大台南及外縣市。格局上為RC造透天型產品,室內規劃5房,最小建坪49坪起,適合在地三代同堂、有小孩家庭購買。

逸墅家8-透天外觀圖

- 機能:「逸墅家8」周邊有麻豆商圈,日常生活採買機能足夠。
- 位置:近麻豆國小、麻豆國中,小孩求學機能無虞。
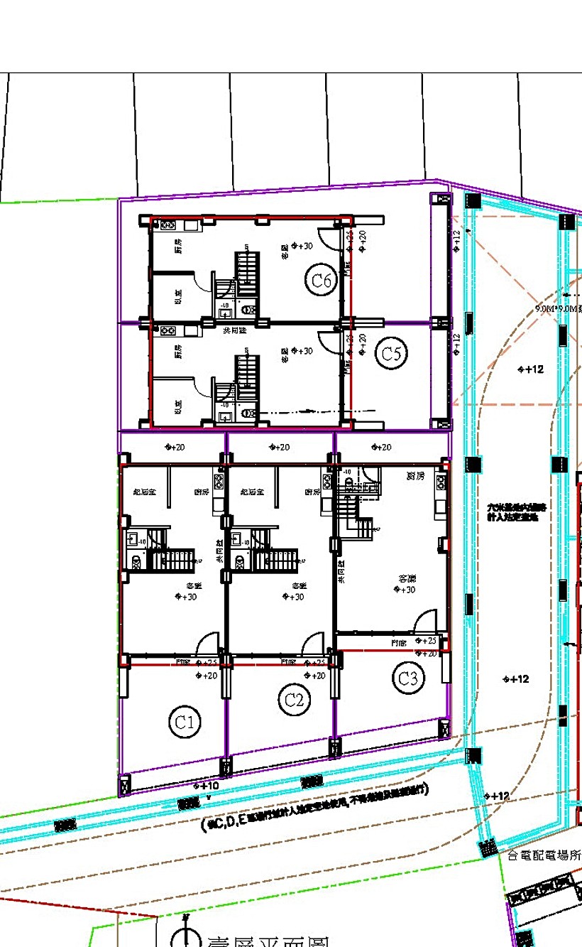
- 格局:5房透天,日常居住實用性高。

-
社區規劃:5戶其中兩戶與三戶門戶分開,缺乏社區凝聚性。
-
格局規劃:部分戶別室內樓梯位置較大。
區域解析

地理位置
交通機能
近國道1號、84快速道路以及客運麻豆轉運站。
生活機能
-
學校:車行4分鐘至麻豆國小及麻豆國中。
-
商業:車行5分鐘內至全聯及麻豆市場、麻豆商圈。
-
休閒:車行3分鐘可至公11公園。
-
醫院:車行7分鐘至麻豆新樓醫院。
社區規劃

「逸墅家8」基地面積483.6坪,土地分區為第三種住宅區,產品本身為RC鋼筋混凝土造透天型產品,規劃地上3層共5棟建築,全社區5戶住家,皆採一樓前院停車模式,無公共設施,公設比為0,但有預留充電樁管線,格局規劃地坪27.7-33.7坪、建坪49-54坪,最特別是,雖然建坪以透天來說不算特別大,但因樓層不高及基地格局,每戶面寬皆為5米以上,最大甚至到6.7米,室內皆為5房格局。
註:100戶以內為小社區,100~300戶中型社區、300戶以上大型社區
註: 1:4以上屬高梯戶比,1:3屬一般梯戶比,1:2、1:1屬低梯戶比,多是豪宅、小基地建案
格局解析
周邊比價
免責聲明:凡註明"591編輯部"的所有文字圖片等資料,版權均屬591房屋交易網所有,轉載請註明出處;文章內容僅供參考,不構成投資建議,也不代表591讚同其觀點。文中所涉坪數,如無特殊說明,均為規劃坪數。文中出現的圖片僅供參考,以銷售中心實際情況為準。
感謝您的反饋,我們將會盡快改善