社區攻略 | 桃園市新屋區博學苑-華廈區看屋心得(價格+格局分析)
桃園市新屋區地理位置在桃園西邊,其中新屋國小生活圈以中山路和中正路為主要幹道,生活機能可以說是麻雀雖小、五臟俱全,預售華廈、透天案「博學苑」,基地位在新生五街附近,規劃2~3房、25~39坪產品及透天店住,為戶數單純的學區宅。

博學苑-華廈區外觀圖

1.環境:「博學苑」距離新屋國小約350公尺、新屋國高中約600公尺,家長接送小孩上下學方便。
2.社區規劃:華廈建築採平面式車位,接受度更高;且全案戶數不多,住戶出入更單純。

1.交通:區內大眾交通運輸系統較不足,需要有車子較方便,且大型公共建設也不多。
區域解析

地理位置
交通機能
開車族可經台66線東西向快速道路通往國道一號;區內的大眾交通運輸系統較不足。
生活機能
- 學校:步行約4分鐘、距離350公尺可至新屋國小;步行約7分鐘、距離600公尺即可抵達新屋國高中。
- 商業:步行約3分鐘、距離210公尺可達新屋市場;步行約6分鐘、距離500公尺可至全聯。
- 休閒:綠地不多,以新屋國中小為主要運動場所,或是步行8分鐘、距離650公尺可至新屋籃球場。
- 醫院:衛生福利部桃園醫院-新屋分院。
社區規劃

「博學苑」基地位在新屋區新生五街18號的對面,面積282.46坪,為3棟建築規劃,包括1棟地上7層、地下1層華廈建築,18戶住家、2戶店面,及2棟地上5層樓的連棟電梯透天,地坪26~37坪、建坪80坪,面寬則為5.1米,縱深12.4~13.8米;車位部分,透天採1樓停車,華廈則為平面式車位20個,車位配比1:1,公設比33%。
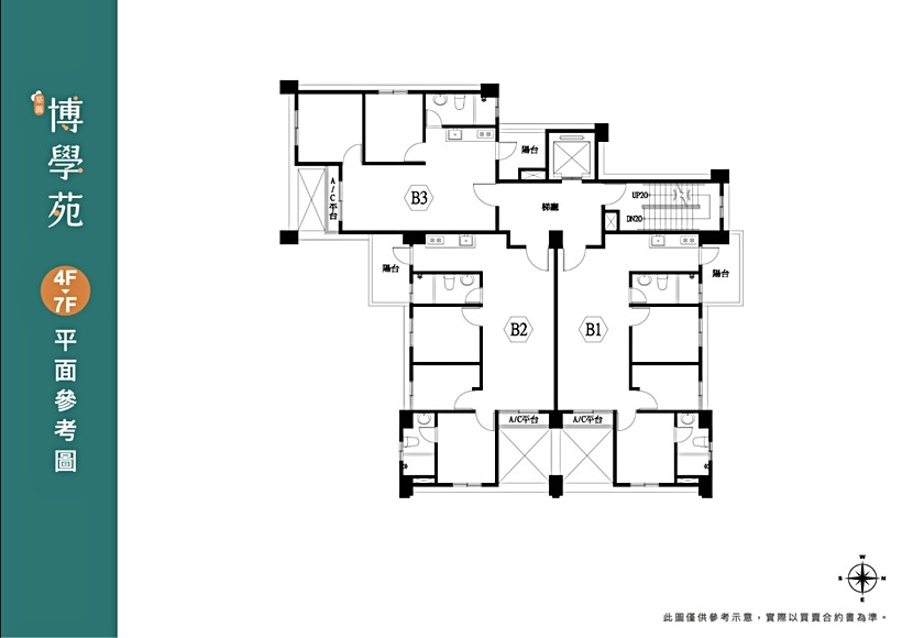
細看華廈的標準層,單層3戶配有1部電梯,梯戶比1:3,其中B1與B2格局類似,皆為3房雙面採光設計,而B3則為2房三面採光設計,同時B3戶因有朝西的開窗面,也須留意西曬的問題。
註:100戶以內為小社區,100~300戶中型社區、300戶以上大型社區
註: 1:4以上屬高梯戶比,1:3屬一般梯戶比,1:2、1:1屬低梯戶比,多是豪宅、小基地建案
格局解析
周邊比價
購買建議
「博學苑」位在新屋國小生活圈內,生活機能還算可以自給自足,但因為區內公共建設較少,大眾運輸亦較不足,整體較有利開車族的朋友。推薦B3戶2房給首購的朋友,儘管有西曬的問題,但小坪數設計到三面採光、間間開窗、衛浴亦開窗,算是滿不容易,且室內幾乎沒有柱子,坪效也不錯。
至於換屋的朋友,若想要一次換到位,不妨參考透天產品,在1、2樓公領域空間都有設置半套衛浴,不論是急用或給訪客使用都很方便,3、4樓寢區也都有規劃衛浴空間,不用上下跑,加上又是三面採光的設計,居住品質更好,只是因屬店住產品又有電梯設計,總價可能會稍高一些。