社區攻略 | 新竹縣湖口鄉璞蒔院看屋心得(價格+格局分析)

璞蒔院外觀圖

- 社區規劃:「璞蒔院」為純住宅規劃,住戶出入單純,且社區公設比低,僅約18%。
- 房型規劃:戶戶三面採光,且為明廳、雙陽台規劃,臥室和衛浴也都有開窗。
- 環境:基地位於重劃區內,街道新穎、整齊,且鄰近公三親子公園。

- 房型規劃:在格局中普遍有柱占空間,因事先了解其位置,並確認家具、家電是否好擺放。
- 交通:區內大眾交通運輸系統較不足,需有車子或其他代步工具較方便。A
區域解析

地理位置
交通機能
車行3分鐘可抵達台鐵湖口車站。
生活機能
- 學校:車行3分鐘可達信勢國小,車行4分鐘則可至新湖國中。
- 商業:車行2分鐘可達全聯(湖口中山),亦鄰近站前商圈。
- 休閒:步行1分鐘即可達公三親子公園,車行3分鐘則可至王爺壟運動公園。
- 醫院:天主教仁慈醫院。
社區規劃

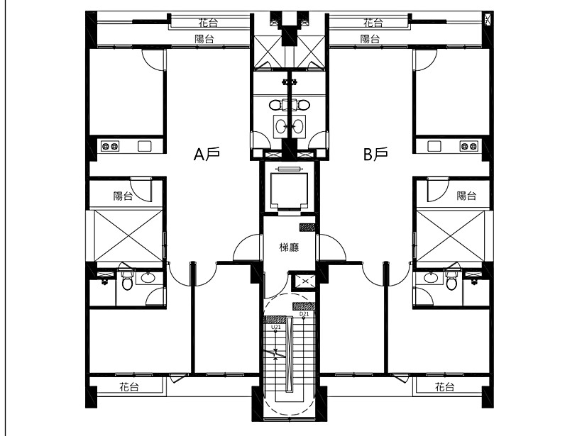
「璞蒔院」基地位在達生五路495號旁,面積145.91坪,規劃1棟地上5層之電梯公寓,全案共9戶住家,為小型純住社區,並採平面式車位9個,車位配比1:1,社區公設有接待大廳及信箱區,公設比18.74%;從3~5樓平面圖來看,為單層2戶1梯的配置,梯戶比1:2,而A、B兩戶格局相似,皆設計三面採光。
註:100戶以內為小社區,100~300戶中型社區、300戶以上大型社區
註: 1:4以上屬高梯戶比,1:3屬一般梯戶比,1:2、1:1屬低梯戶比,多是豪宅、小基地建案
格局解析
周邊比價
購買建議
「璞蒔院」為純住宅規劃,住戶出入單純,且社區公設比低,惟格局中普遍有柱占空間,因事先了解其位置,並確認家具、家電是否好擺放,且區內大眾交通運輸系統較不足,建議有車子或其他代步工具較方便;以平面圖來看,推薦B戶給換屋的朋友,除了為三面採光設計,臥室和衛浴間間開窗之外,相較A戶較無西曬問題,整體居住品質較佳,故推薦。
免責聲明:凡註明"591編輯部"的所有文字圖片等資料,版權均屬591房屋交易網所有,轉載請註明出處;文章內容僅供參考,不構成投資建議,也不代表591讚同其觀點。文中所涉坪數,如無特殊說明,均為規劃坪數。文中出現的圖片僅供參考,以銷售中心實際情況為準。
感謝您的反饋,我們將會盡快改善