社區攻略 | 桃園市平鎮區大金囍看屋心得(價格+格局分析)
桃園市平鎮區南勢地區生活機能集中在中豐路南勢二段兩側,區內學校、公園俱全,預售華廈案「大金囍」基地即位在南平路98巷內,鄰近主幹道中豐路及大潤發,全案規劃二房22坪和三房31.5、32坪產品,公設比僅25%。
大金囍外觀圖
優點
- 社區規劃:「大金囍」全案共51戶住家,屬於小型純住宅社區,住戶出入人口較單純,且公設比僅25%。
- 房型規劃:戶戶為明廳設計、無暗房。
缺點
- 社區規劃:車位規劃不足,少部分戶別無法配到車位。
- 學區:重劃區內目前僅有南勢國小一所小學,且為總量管制,有部分小孩可能需要讀到較遠地區的學校。
區域解析
地理位置
交通機能
附近有台66線東西向快速道路可利用。
生活機能
- 學校:車行4分鐘可至南勢國小及平南國中。
- 商業:車行3分鐘可達大潤發(平鎮店)、全聯(平鎮上海)。
- 休閒:休閒運動可至平鎮國民運動中心,車行3分鐘可至。
社區規劃
「大金囍」基地位在南平路98巷1號對面,面積398.68坪,規劃1棟地上9層、地下2層華廈建築,全案共51戶住家,屬於小型純住宅社區,車位為平面式49個,車位配比1:0.96;社區公共設施包含接待大廳、中庭花園、交誼廳、閱覽室、健身房、親子遊戲區、信箱區等,公設比25%。
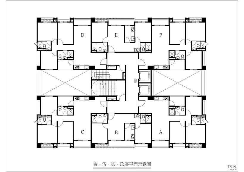
從標準層平面圖來看,為單層6戶2梯配置,梯戶比1:3;細看格局規劃,A、C、D、F格局相似,為三面採光,B、E格局亦相似,則為單面採光。
註:100戶以內為小社區,100~300戶中型社區、300戶以上大型社區
註: 1:4以上屬高梯戶比,1:3屬一般梯戶比,1:2、1:1屬低梯戶比,多是豪宅、小基地建案
格局解析
周邊比價
購買建議
「大金囍」位處南勢地區,因重劃區僅一所小學,有就學需求的家庭可事先留意,此外,社區車位規劃不足,少部分戶別無法配到車位;推薦B、E戶2房給首購的朋友,格局方正、室內無柱,坪效較高,且為獨立廚房、明廳、無暗房,亦規劃2間衛浴,居住者使用更彈性。
免責聲明:凡註明"591編輯部"的所有文字圖片等資料,版權均屬591房屋交易網所有,轉載請註明出處;文章內容僅供參考,不構成投資建議,也不代表591讚同其觀點。文中所涉坪數,如無特殊說明,均為規劃坪數。文中出現的圖片僅供參考,以銷售中心實際情況為準。
感謝您的反饋,我們將會盡快改善



