開箱文 | 新北市新莊區馥華之道看屋心得(價格+格局分析)
「馥華之道」位於新北市新莊區福營路,屬下新莊生活圈,周邊有公園、警察局、鐵皮廠房、廟宇,北側不遠即是台1甲線省道,捷運丹鳳站亦相距不遠,交通、通勤相當便利。全案規劃2~4房及店面(另有社會住宅),強調2390坪大基地、32層地標建築,住家最小坪數28坪起。

馥華之道外觀圖

- 環境:「馥華之道」北側不遠有台1甲線省道通過,距捷運丹鳳站步程只約3分鐘。
- 規劃:基地2390坪,規劃32層地標建築,採SC/SS純鋼骨結構,RC鋼筋混凝土結構;有接待大廳、交誼廳、閱覽室、兒童遊戲區、信箱區…等休閒公設;梯戶比皆為1:2.3,屬低梯戶比。

- 環境:基地南側鄰廟宇,隔路有鐵皮廠房。
區域解析

地理位置
交通機能
本案北側不遠即是台1甲線省道(中正路)(車行約1分鐘),轉東通往台65線快速道、上新莊及三重地區,轉西可通往桃園市;另步行約3分鐘到達捷運丹鳳站。
生活機能
- 學校:車行約6~8分鐘到達學區國泰國小,步行約8分鐘可達學區福營國中。
- 商業:步行約7分鐘可達全聯福利中心(新莊後港店)及四維市場,步行約9分鐘可達家樂福(新莊後港一店),車程約5~7分鐘可達COSTCO新莊店。
- 休閒:步行約1分鐘可達福營新公園,步行約5分鐘可達後港新公園,步行8分鐘可達新北市立圖書館新莊福營分館。
社區規劃

「馥華之道」位於新北市新莊區福營路,由華鉅開發建設股份有限公司投資建設,許國勝建築師事務所建築設計,基地面積2390.32坪,公設比34.75~34.98%,公共設施有接待大廳、交誼廳、閱覽室、兒童遊戲區、信箱區。樓層規劃為2棟地上32層、地下6層建築,共有607戶住家、44戶社會住宅、3戶店面、2戶管委會空間,屬大型社區。格局坪數規劃2房28~29坪、2+1房29~31坪、3房36~42坪、4房54坪,車位規劃平面式749個,車位配比1:1.14,符合1戶1車位設計。
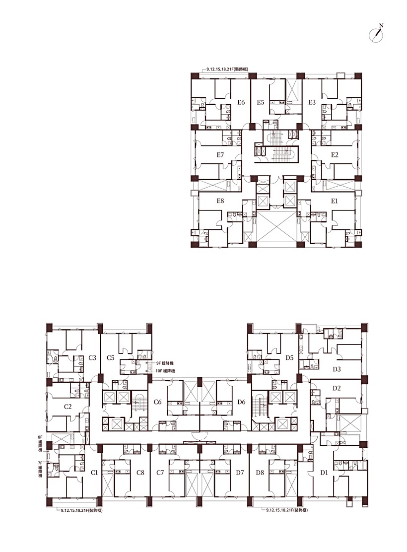
本案標準層平面圖分C、D棟及E棟兩大棟,C、D區部份,2區都是單層7戶配3部電梯,梯戶比1:2.3,屬低梯戶比,其中C1、C3、C5、D3、D5戶皆為3房格局,而C1戶與C3戶、C5戶與D5戶的格局對稱相仿,C6、C7、C8、D2、D6、D7、D8戶為2房,此7戶格局皆對稱相仿,C2戶為2+1房,D1戶為4房。採光部份,C6、C7、C8、D2、D6、D7、D8戶為單面採光,C2、D3、D5戶為雙面採光,C1、C3、C5、D1戶為三面採光。E棟部份,單層7戶配3部電梯,梯戶比1:2.3,屬低梯戶比,其中E1、E3、E6、E8戶為3房,而E1戶與E8戶、E3戶與E6戶格局對稱相仿,E2、E7戶為2+1房,格局也對稱相仿,E5戶為2房;採光部份,E1、E8戶為三面採光,E2、E3、E6、E7為雙面採光,E5戶為單面採光。
註:100戶以內為小社區,100~300戶中型社區、300戶以上大型社區
註: 1:4以上屬高梯戶比,1:3屬一般梯戶比,1:2、1:1屬低梯戶比,多是豪宅、小基地建案