社區攻略 | 新竹縣芎林鄉篤篤源看屋心得(價格+格局分析)
「篤篤源」位在新竹縣芎林鄉文山路旁,屬舊市區地段,距國小、市集及國道3號竹林交流道不遠,生活機能、聯外交通都便利。全案住家規劃2~3+1房產品,強調具接待大廳、交誼廳、會議室、閱覽室、廚藝教室等休閒公設,且住家2~3面採光,無暗房設計,最小坪數28坪起。
篤篤源外觀圖
優點
- 環境:「篤篤源」位舊市區、臨幹道,距國小、超市、公園、國道3號皆不遠,生活機能不錯。
- 規劃:建蔽率31.17%,1樓保留大面積的綠意庭院;車位配比1:1.36,符合1戶1車位規劃;住家2~3面採光,無暗房設計。
缺點
- 環境:附近有宮廟,節慶活動聲響恐較大。
區域解析
地理位置
交通機能
本案臨幹道文山路,南側不遠就是國道3號竹林交流道(車行約3分鐘),另外車行約4分鐘可達68快速道路,聯外交通條件頗為便利。
生活機能
社區規劃
「篤篤源」座落於新竹縣芎林鄉文山路旁,由篤篤建設有限公司投資建設,億東營造股份有限公司營造,採RC鋼筋混凝土結構,基地面積691.43坪,建蔽率31.17%,公設比33.8%,公共設施有接待大廳、交誼廳、會議室、閱覽室、廚藝教室、1樓花園等。
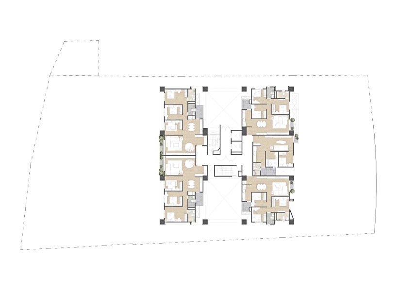
樓層規劃1棟地上15層、地下3層建築,共有70戶住家、1戶店面+辦公室、1戶管委會,屬小型社區,格局坪數為2房(28坪)、3房(39坪)、3+1房(45坪);車位共98個平面式車位,車位配比1:1.36,符合1戶1車位設計。
本案標準層平面圖單層5戶配2部電梯,梯戶比1:2.5,屬一般梯戶比,其中A1、A2戶為3+1房,格局對稱相仿,B1、B2戶為3房,格局也對稱相仿,C戶為2房。採光部份,A1、A2、B1、B2戶皆位邊間,皆為3面採光,C戶為雙面採光。
註:100戶以內為小社區,100~300戶中型社區、300戶以上大型社區
註: 1:4以上屬高梯戶比,1:3屬一般梯戶比,1:2、1:1屬低梯戶比,多是豪宅、小基地建案
格局解析
周邊比價
免責聲明:凡註明"591編輯部"的所有文字圖片等資料,版權均屬591房屋交易網所有,轉載請註明出處;文章內容僅供參考,不構成投資建議,也不代表591讚同其觀點。文中所涉坪數,如無特殊說明,均為規劃坪數。文中出現的圖片僅供參考,以銷售中心實際情況為準。
感謝您的反饋,我們將會盡快改善



