社區攻略 | 桃園市桃園區鴻築麗苑看屋心得(價格+格局分析)
桃園市桃園區的經國特區受惠北北桃生活圈成型,為許多雙北通勤族的購屋新標的,預售大樓案「鴻築麗苑」基地即位在主幹道經國路上,鄰近國道一號桃園交流道,全案規劃22~37坪、2~3房的首購及首換型產品,訴求千坪大基地。

鴻築麗苑外觀圖

- 交通:千坪基地預售案「鴻築麗苑」鄰近桃園交流道,距離經國轉運站亦不遠。
- 發展前景:經國特區擁幸福路延伸計畫與捷運綠線兩大建設利多,未來將備齊國道、轉運站、捷運三大交通動能,打通區域任督二脈。

- 環境:附近有長榮貨櫃集散地,貨櫃車出入較頻繁,介意者須考慮與評估。
區域解析

地理位置
區域重大前景規劃:幸福路延伸計畫將從幸福路向西延伸興建橋樑,跨越南崁溪銜接至中正路,而捷運綠線也將行經中正路,預計在中正路與莊敬路口設站點。
交通機能
步行3分鐘即可達經國轉運站,周邊亦有國道一號桃園交流道可利用。
生活機能
- 學校:車行7分鐘可至同安國小,車行3分鐘則可至經國國中。
- 商業:車行5分鐘可達家樂福(桃園店)。
- 休閒:步行6分鐘450公尺可達水岸公園。
社區規劃

「鴻築麗苑」基地位在經國路875號旁,面積1006.38坪,規劃3棟地上15層、地下5層之建築,全案共240戶住家、6戶店面及48戶一般事務所,屬於中型社區;車位為平面式308個,車位配比1:1.05,社區公共設施包括接待大廳、中庭花園、交誼廳、會議室、健身房等,公設比33.8%。
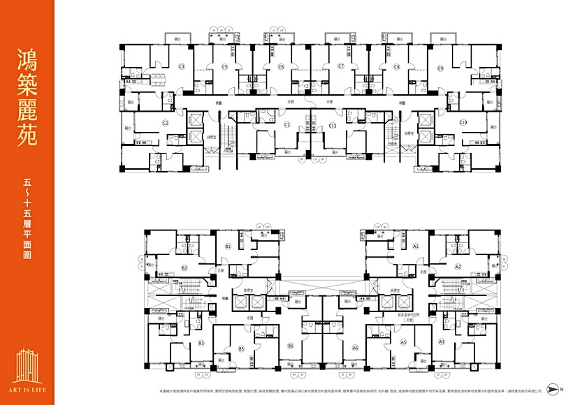
從平面圖來看,分成A、B、C棟,其中A、B棟為單層5戶2梯的配置,梯戶比1:2.5,而C棟則為單層10戶4梯的配置,採分別5戶使用2梯的設計,梯戶比亦為1:2.5;格局方面,A1、A2、A3、A6、B1、B2、B3、B6、C2、C3、C9、C10為雙面採光,且A1與B1、A2與B2、A3與B3、A6與B6、C2與C10及C3與C9彼此格局相似;至於A5、B5、C1、C5、C6、C7、C8、C11則為單面採光,其中A5與B5、C1與C11彼此格局相似,而C5、C7、C8亦為相似格局。
註:100戶以內為小社區,100~300戶中型社區、300戶以上大型社區
註: 1:4以上屬高梯戶比,1:3屬一般梯戶比,1:2、1:1屬低梯戶比,多是豪宅、小基地建案
格局解析
周邊比價
購買建議
千坪基地預售案「鴻築麗苑」位處經國重劃區,街廓整齊新穎,亦鄰近交流道,交通便捷,惟附近有長榮貨櫃集散地,貨櫃車出入較多,在意的民眾可留意、評估;以家配圖來看,推薦A3、B3戶2房給首購的朋友,兩戶相似,格局較方正、室內少柱,為雙面採光、明廳、無暗房的設計,且規劃有2間衛浴,居住者使用較方便,在居住動線配置也不錯,同時亦屬於臨路戶別,棟距佳,故推薦。