百亨優閣-透天別墅-NO.10
百亨優閣-透天別墅-NO.10
1050~1098萬/戶
在售預售屋透天明星學區景觀宅制震宅
單價23.8萬/坪
地坪24.87~50.33坪
建坪48~61.28坪
完工已經完工
建設百亨開發有限公司
生活圈馬賽生活圈
基地地址宜蘭縣蘇澳鎮思村路83號
瞭解蘇澳鎮更多建案主推格局
近期成交 查看全部
最新動態 全部動態(16)
已開案
2023年02月15日已完工
2025年第一季度
- 01-02
2026
115年1月份起立即買立即交屋,全面完工將以新成屋迎接大家,銷售倒數個位數,參予當天看當天訂銷售價先折15萬回饋,歡迎提前預約現場參觀選購。
- 12-04
2025
114年12月份起預計即將交屋,全面完工將以新成屋迎接大家,銷售倒數個位數,看房請提早預約,現場備有銷售資料及建材展示,歡迎預約賞屋。
全部動態(16)
有新動態時提醒我有新動態時提醒我,一手情報搶先知道 >
擔心錯過重要資訊?點擊訂閱動態,一手情報搶先知道點擊訂閱, 最新訊息早知道
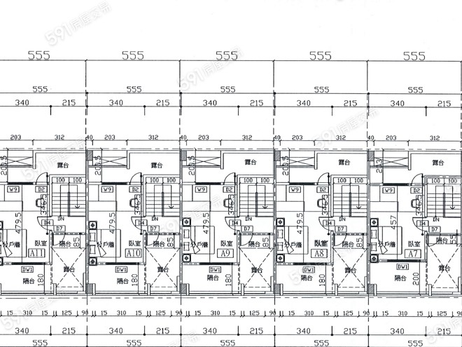
社區規劃
建築規劃
基地面積
427.77坪
建蔽率
60%
管理費用
無管理費
停車方式
前院停車,1樓停車
棟戶規劃
16幢,16棟,17戶住家
樓層規劃
地上4層
充電設備
有充電設備(含預留)
基地面積
427.77坪
建蔽率
60%
管理費用
無管理費
停車方式
前院停車,1樓停車
充電設備
有充電設備(含預留)
棟戶規劃
16幢,16棟,17戶住家
樓層規劃
地上4層
建商資料
投資建設
百亨開發有限公司
營造公司
立璟營造有限公司
使用執照
暫無
建造執照
(111)(12)(29)建管建字第00678~00693號
企劃銷售
百亨開發銷售團隊
建築設計
富彥建築師事務所
查看全部建案資料
獲取更多建案資訊沒找到想了解的資訊?獲取更多建案資訊 >
周邊社區
解讀周邊行情趨勢周邊行情趨勢,獲取專業解讀 >
周邊機能
關注此建案的人還關注
- 附近建案
- 宜蘭縣建案
- 其他建案
建案介紹:宜蘭縣百亨優閣-透天別墅-NO.10,23.8萬/坪,建案地址宜蘭縣蘇澳鎮思村路83號,更多百亨優閣-透天別墅-NO.10最新動態、開箱評價,請諮詢電話(0972-528-588轉33204)。
1、本公司所使用之所有內容,任何人不得擅自使用非經授權之智慧財產權內容,亦不得使用網路爬蟲或其他自動下載程式或任何其他類似或具相同功能的手動程序來連續自動搜索、獲得、使用、下載。如有違反,除依相關法律規定論處,並應對591負損害賠償責任,本公司將收取一個刊登物件內容,三千元計算之費用,您與本公司簽署正式合作合約前,應立即停止非經合法授權之行為。
2、本網站建案資訊為各建商/代銷提供,最終請以建商及建案銷售現場實際狀況爲準,請謹慎覈查。如該建案信息有誤,您可撥打客服電話進行反饋:02-55722000
本網站建案資訊為各經銷/代銷商提供,請以現場實際狀況為準。


























































